
Proposed front elevation for 1386 Rock Springs Cir
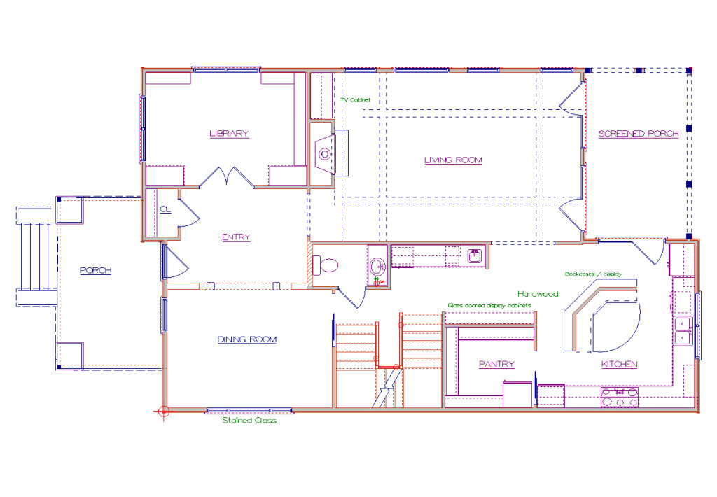
Healthy House of Georgia is currently building a new custom home in Morningside at 1386 Rock Springs Cir, Atlanta, GA. The proposed floor plans include 4300 square feet of custom crafted elegance. This home is available for $1,150,000. This property expands into the Daniel Johnson Nature Preserve along Peachtree Creek and Rock Creek. The architect designed the house around the view of the park and many of the home’s features highlight the view of the park.
Contact builder Dennis McConnell to discuss how we can customize this house for your family.
Interior images shown below are example interiors from a custom house built with a similar floor plan. The details of 1386 Rock Springs Cir are waiting for the customer to select and customize to their lifestyle – paint colors, granite countertop colors, cabinet styles, lighting and plumbing fixtures, and much more.





















